Aktuelle Angebote
Attraktive Gewerbeeinheit für Praxis, Büro oder Dienstleistung – Neubau in Pliezhausen
Top Angebot



- Objektart
- Büro/Praxen
- Objekttyp
- Büroetage
- Vermarktungsart
- Kauf
- PLZ
- 72124
- Ort
- Pliezhausen
- ImmoNr
- GI-KL-332
- Wohnfläche
- ca. 117 m²
- Anzahl Zimmer
- 1
- Kaufpreis
- 565.000,00 €
- Baujahr
- 2026
- Endenergie-bedarf
- 5 kWh/(m²a)
- Energieausweis
- Bedarfsausweis
- Energieausweis gültig bis
- 11.06.2033
- Energieeffizienzklasse
- A+
- Außen-Provision
- Provisionsfrei für den Käufer
- wesentlicher Energieträger
- Geothermie Wärmepumpe
Beschreibung
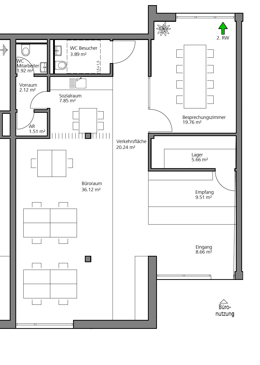
Im Herzen von Pliezhausen entsteht diese moderne Gewerbeeinheit – perfekt geeignet für Praxen, Büros, Kanzleien oder Dienstleistungsunternehmen. Auf ca. 117,24 m² Fläche profitieren Sie von einer flexiblen Raumaufteilung, barrierefreiem Zugang und energieeffizienter Bauweise.Die Gewerbeeinheit GE 16 befindet sich im Erdgeschoss eines modernen Neubaus und bietet eine durchdachte Aufteilung:
• Empfangsbereich (ca. 9,51 m²) – repräsentativ und einladend
• Büroraum (ca. 36,12 m²) – ideal für mehrere Arbeitsplätze oder offene Konzepte
• Besprechungszimmer (ca. 19,76 m²) – perfekt für Meetings oder Beratungen
• Lagerfläche (ca. 5,66 m²) – für Akten, Materialien oder Technik
• Sozialraum (ca. 7,85 m²) – mit Küche oder Pausenbereich
• Separate WCs für Mitarbeiter (ca. 1,92 m²) und Besucher (ca. 3,89 m²)
• Verkehrsflächen (ca. 20,24 m²) – großzügig und barrierefrei gestaltet
• Abstellraum (ca. 1,51 m²) – praktisch für Reinigung und Material
Alle Räume sind flexibel nutzbar und ermöglichen unterschiedliche Nutzungskonzepte – von der klassischen Arztpraxis über moderne Bürolösungen bis hin zu kreativen Arbeitswelten.
Perfekte Lösung für Ihr Unternehmen oder Ihre Praxis! Sichern Sie sich Ihre neue Gewerbefläche im Herzen von Pliezhausen.
Jetzt Beratungstermin vereinbaren und Exposé anfordern!
Lage
Das Neubauprojekt befindet sich in einer der attraktivsten Lagen von Pliezhausen, zentral und dennoch ruhig gelegen.In unmittelbarer Umgebung finden sich zahlreiche Einkaufsmöglichkeiten, Cafés, Restaurants sowie Schulen, Kindergärten und Sporteinrichtungen.
Dank der hervorragenden Verkehrsanbindung über die B27 erreichen Sie Reutlingen, Tübingen sowie den Flughafen Stuttgart in wenigen Minuten – perfekt für Berufspendler und Berufstätige.
Direkt im Neubauprojekt entstehen zudem moderne Praxisflächen, die bereits an Ärzte vermietet sind – unter anderem ein Zahnarzt sowie weitere medizinische Fachrichtungen. Damit wird eine optimale Gesundheitsversorgung direkt vor Ort gewährleistet und die Attraktivität des Standortes zusätzlich erhöht.
Der neue Ortskern von Pliezhausen wird durch Urban Gardening-Flächen, einen Kinderspielplatz und großzügige Außenanlagen aufgewertet und bietet so ein lebendiges, familienfreundliches Umfeld.
Karte
Ausstattung
Besondere Highlights• Hochwertige Neubauausstattung
• Flexibel nutzbare Flächen für verschiedene Branchen
• Energieeffizientes Wohnen mit niedrigen Betriebskosten
• Gemeinschaftsgarten und modernes Wohnumfeld
• Zinsgünstige Finanzierung möglich durch KfW-Darlehen für gewerbliche Nutzung (KfW-Programm 263)
• Lineare Abschreibung: Die lineare AfA beträgt 3 % pro Jahr der Herstellungskosten.
Merkmale Gewerbeeinheit
• Nutzfläche: ca. 117,24 m²
• Raumaufteilung: Empfang, Büroraum, Besprechungszimmer, Sozialraum, Lager, WCs
• Fertigstellung Mitte 2026 (geplant)
• Energieeffizienz: KfW-40-Standard
• Heizung: Geothermie-Wärmepumpe, Fußbodenheizung
• Fenster: 3-fach-Verglasung, Sonnenschutz
• Bodenbeläge: hochwertig und pflegeleicht (nach Mieterwunsch möglich)
• Aufzug: barrierefrei bis Tiefgarage
• Tiefgaragen-/ Außenstellplatz optional verfügbar
• Keller: eigener Abstellraum
Rechtliche Hinweise
Da wir uns bei allen Angaben auf die Informationen Dritter stützen müssen, können wir keine Gewähr für deren Richtigkeit und Vollständigkeit übernehmen. Bitte haben Sie Verständnis dafür, dass wir nur Anfragen mit vollständiger Adressangabe und erreichbarer Handynummer bearbeiten können. Nachdem Ihre Anfrage per E-Mail bei uns eingegangen ist, werden wir uns mit Ihnen zur Abstimmung eines Besichtigungstermins in Verbindung setzen. Bitte nennen Sie deshalb in Ihrer E-Mail eine Tel.-Nr., unter der wir Sie sicher erreichen können.Widerrufsbelehrung für Verbraucher:
Sie haben das Recht, binnen vierzehn Tagen ohne Angabe von Gründen diesen Vertrag zu widerrufen. Die Widerrufsfrist beträgt vierzehn Tage ab dem Tag des Vertragsabschlusses. Um Ihr Widerrufsrecht auszuüben, müssen Sie uns (Goldschild Immobilien GmbH, Behrstraße 90, 73240 Wendlingen, info@goldschild-immobilien.de) mittels einer eindeutigen Erklärung (z. B. ein mit der Post versandter Brief oder E-Mail) über Ihren Entschluss, diesen Vertrag zu widerrufen, informieren. Zur Wahrung der Widerrufsfrist reicht es aus, dass Sie die Mitteilung über die Ausübung des Widerrufsrechts vor Ablauf der Widerrufsfrist absenden.
Folgen des Widerrufs:
Wenn Sie diesen Vertrag widerrufen, haben wir Ihnen alle Zahlungen, die wir von Ihnen erhalten haben, unverzüglich und spätestens binnen vierzehn Tagen ab dem Tag zurückzuzahlen, an dem die Mitteilung über Ihren Widerruf dieses Vertrags bei uns eingegangen ist. Für diese Rückzahlung verwenden wir dasselbe Zahlungsmittel, das Sie bei der ursprünglichen Transaktion eingesetzt haben, es sei denn, mit Ihnen wurde ausdrücklich etwas anderes vereinbart; in keinem Fall werden Ihnen wegen dieser Rückzahlung Entgelte berechnet. Haben Sie verlangt, dass die Dienstleistungen während der Widerrufsfrist beginnen soll, so haben Sie uns einen angemessenen Betrag zu zahlen, der dem Anteil der bis zu dem Zeitpunkt, zu dem Sie uns von der Ausübung des Widerrufsrechts hinsichtlich dieses Vertrags unterrichten, bereits erbrachten Dienstleistungen im Vergleich zum Gesamtumfang der im Vertrag vorgesehenen Dienstleistungen entspricht.
Seiten: 1

